Luminosissimo TRILOCALE con box
(Varese) -
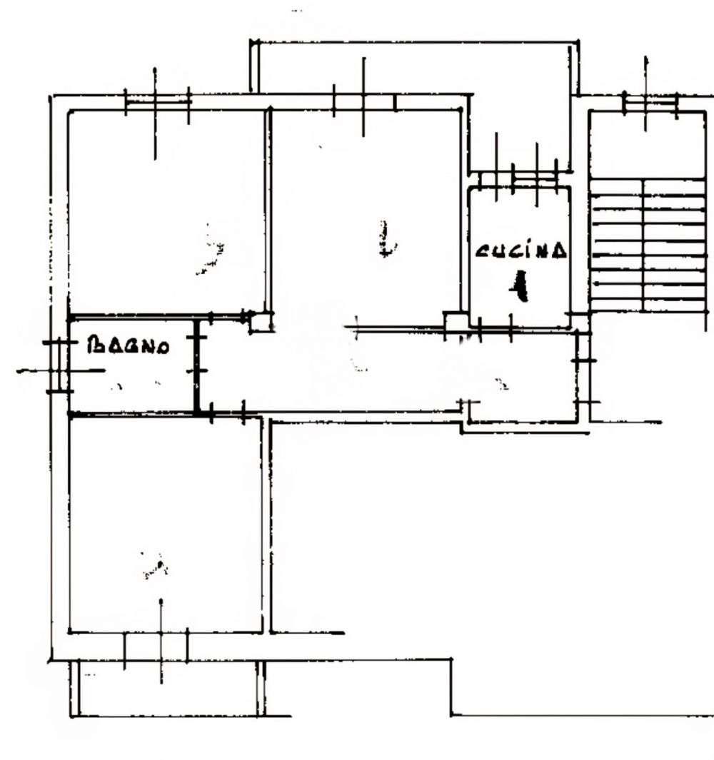
Gallarate (Cedrate) : In zona strategica, comoda a tutti i servizi, alla stazione e all'ingresso autostradale, ampio TRILOCALE così composto: Ingresso in disimpegno, cucina abitabile con terrazzino, ampio e accogliente soggiorno con balcone, disimpegno zona notte, due grandi camere ( di cui una con balcone), bagno.
Completa la proprietà una cantina posta al piano interrato e un comodo BOX singolo posto al piano terra
Il riscaldamento è AUTONOMO e le spese condominiali sono irrisorie
L'appartamento è ben tenuto, molto luminoso e con un'ottima esposizione ( sud/ovest)
Belli gli affacci aperti sulla città
La palazzina è in ordine, non ci sono in previsione lavori straordinari
Richiesta euro 118.000
Classe energetica E ipe 141,67
rif N 793
Per info 327 577 16 40
€ 118.000,00
| Riferimento | N 793 |
|---|---|
| Tipologia | Trilocale |
| Stato immobile | buone condizioni |
| Tipo di contratto | vendita |
|---|---|
| Prezzo | € 118.000,00 |
| Provincia | Varese |
|---|---|
| Regione | Lombardia |
| Stato | Italy |
| Classe energetica | E ipe 141,67 |
|---|---|
| m² | 100 |
| Locali | locali ampi e luminosi |
| Balconi | N. 1 / grande balcone su tutta la zona giorno |
| Cantine | N. 1 / m² 6 |
| N. Piani | 5 |
|---|---|
| Piano di accesso | 3 |
| Porta blindata | porta blindata |
| Ascensore | Non c'è ascensore |
| Box | N. 1 / m² 20 / Box singolo grande |
|---|
| Riscaldamento | Riscaldamento auto |
|---|
| Spese condominiali | circa 600 euro annue più consumo acqua |
|---|
Per avere ulteriori informazioni su questo annuncio è sufficiente inserire i dati richiesti nel form sottostante e premere "Invia Richiesta"
I campi in grassetto sono obbligatori.




